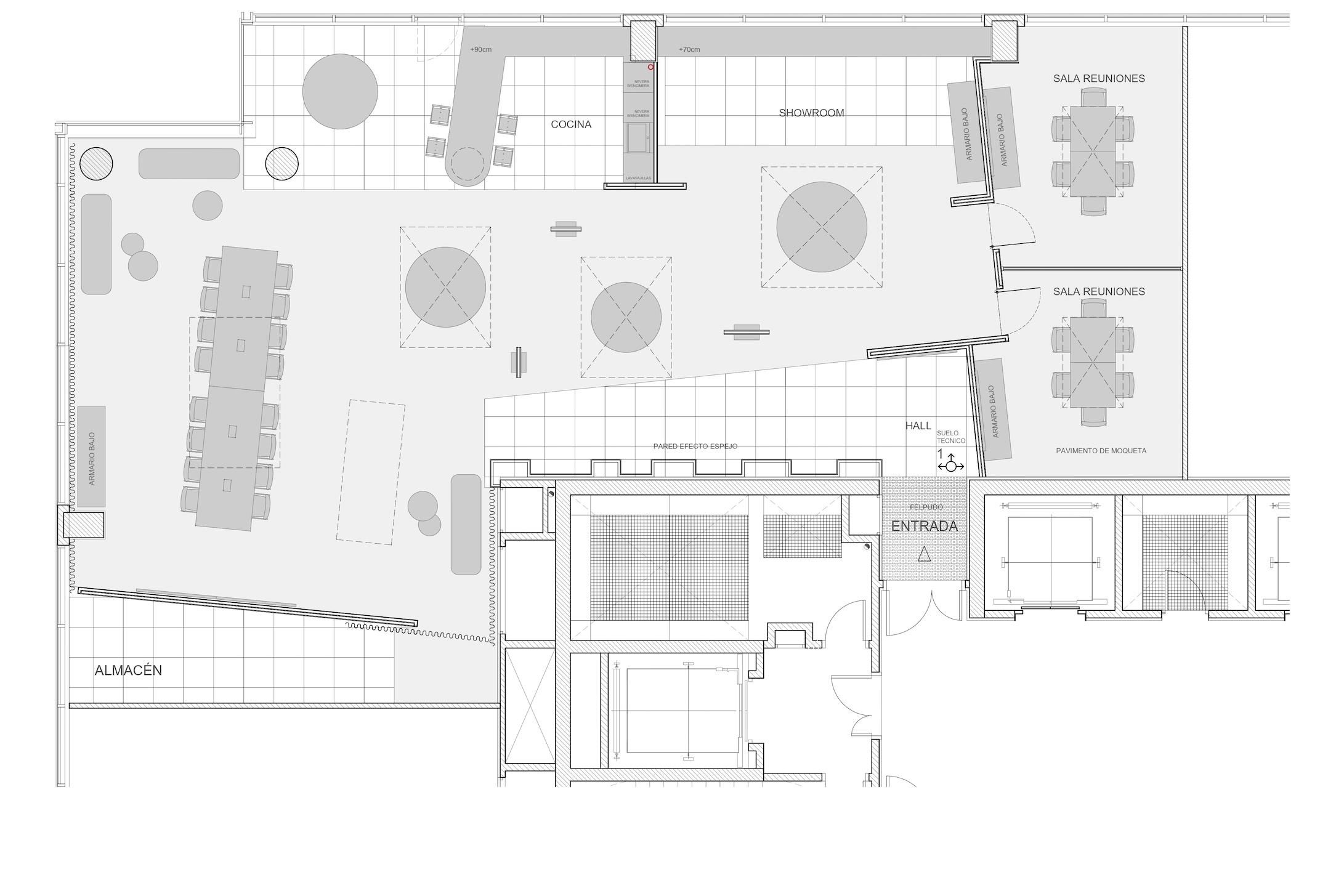
Showroom Diagonal Mar

Oficinas
Barcelona
2025

Un ambiente que transmita innovación y unas privilegiadas vistas del litoral barcelonés han sido los puntos de partida para el diseño de este showroom en Diagonal Mar. Situado en uno de los edificios corporativos de la zona y compartiendo planta con las oficinas que la marca tiene en Barcelona, se ha optado por crear un espacio diáfano y polivalente.

El predominante color azul hace referencia a la imagen de marca y abraza la cromática del mar presente en cada punto del espacio. De manera complementaria se ha realizado una selección de materiales que aporten modernidad al conjunto y sirvan de lienzo para la exposición de los productos de la marca. Paredes de policarbonato retroiluminadas, paredes revestidas de espejo y pavimento que combina zonas de acero galvanizado con moqueta azul organizan y jerarquizan las necesidades programáticas del proyecto.

La intervención se completa con el diseño de piezas de iluminación y mobiliario expositivo.

 

Fotografías: Meritxell Arjalaguer